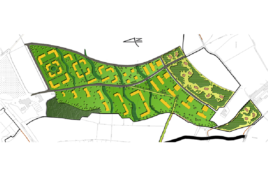
Étude pour l'urbanisation de terrains viticoles

Sud de la France

en collaboration avec Eric Marro et Gérard Simonetti

 

PAUL MAYLA ARCHITECTURE & ASSOCIES

 

4, rue Rouget de Lisle

92240 Malakoff

 

T : 01 46 56 36 21

 

@ : p.mayla@mayla-archi.fr

 

www.mayla-archi.fr