CLINIQUE MOZART

 

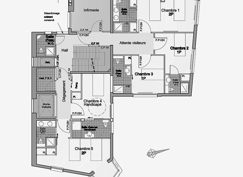
Cette clinique de cardiologie dans un immeuble parisien en R+5 avec sous-sol, et disposant de 3 salles d'opérations, a été entièrement restructuré et transformé en clinique de chirurgie esthétique avec chambres et cabinets de consultation.

 

PAUL MAYLA ARCHITECTURE & ASSOCIES

 

4, rue Rouget de Lisle

92240 Malakoff

 

T : 01 46 56 36 21

 

@ : p.mayla@mayla-archi.fr

 

www.mayla-archi.fr