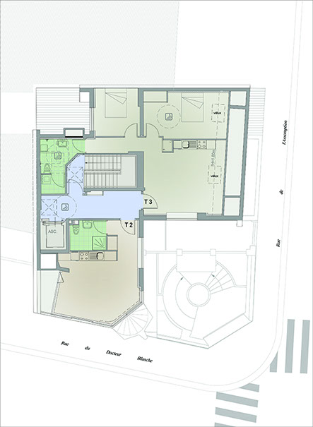
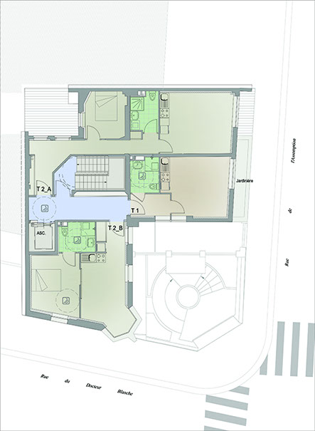
Transformation d'un immeuble commercial en logements

 

CREPA - Paris 16

 

PAUL MAYLA ARCHITECTURE & ASSOCIES

 

4, rue Rouget de Lisle

92240 Malakoff

 

T : 01 46 56 36 21

 

@ : p.mayla@mayla-archi.fr

 

www.mayla-archi.fr